Project Design Features
Nelson Worldwide, LLC was required to provide a building that is Code Compliant with Type IA Construction. The architectural services were performed for those projects designated by Braves Development Company, LLC and to suit Truist. This consists of a 9-story office tower over 2 levels of parking and building services. The total square footage for the office building is 250,000 square feet of rentable space. The project also includes a multi-story free standing parking deck with a capacity of 750 cars.

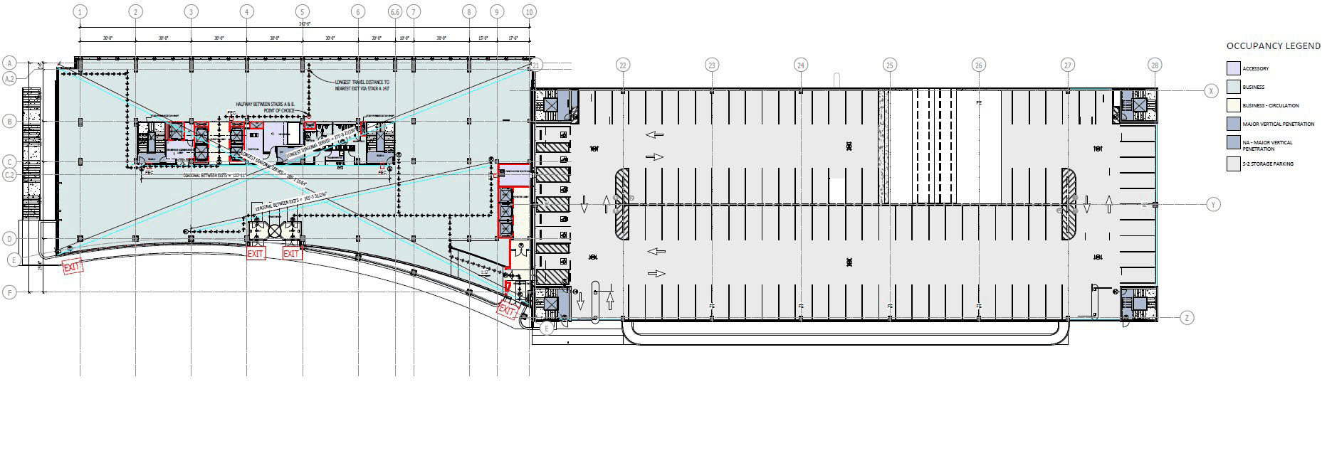
Code Compliance - Level 01 - Main Entrance & Parking
Drawings Produced by Nelson Worldwide, LLC

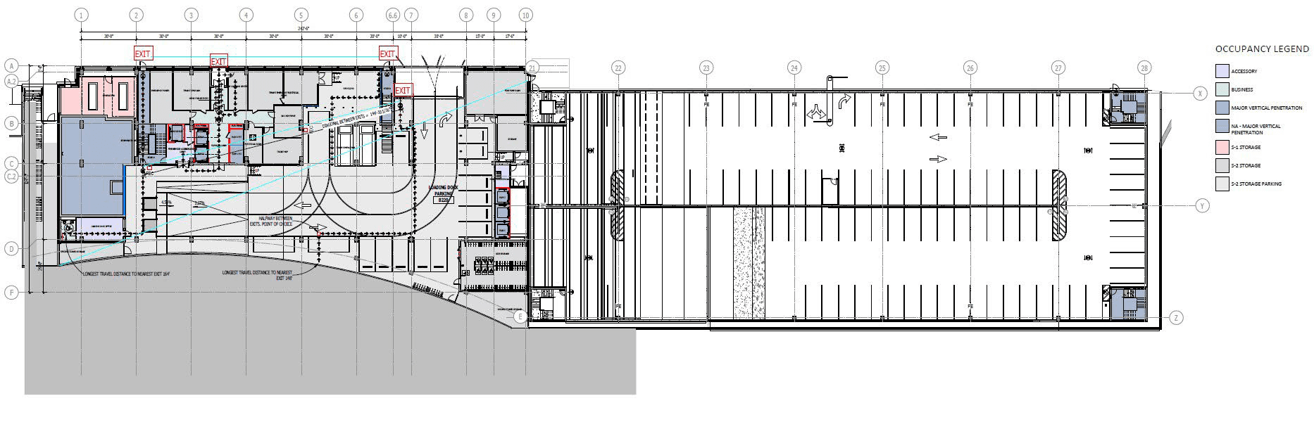
Code Compliance - Level B2 - Loading Deck & Parking
Drawings Produced by Nelson Worldwide, LLC

Rendered Elevations Produced by Nelson Worldwide, LLC
Project Team and Role
Even though I wasn't part of early design services, I helped with later phases in Construction Documents and Value Engineering Items to help bring the project to its deadline within budget. Nelson Worldwide, LLC was responsible for the architectural design, core and shell, code compliance, and coordinating interior design. I worked with the architectural project team for the following deliverables:
• Life Safety Plans and presentations for clients
• Coordinating curtain wall and awning shade materials with Specifications and Consultant’s recommendations
• Coordinating Specifications with finish schedules, exterior materials, and interior room finishes


Renders Produced While at Nelson Worldwide, LLC
Project Impact
This project has activated a vibrant light scheme for a new office tower complex that’s part of a mixed-use growth spurt beyond the 41,000-seat MLB ballpark’s walls at The Battery Atlanta. Half of the building will be occupied by Braves Development employees giving easy access to the Braves Stadium and help grow its business presence. This is part of the larger Battery's mission to enhance the new Entertainment District.




