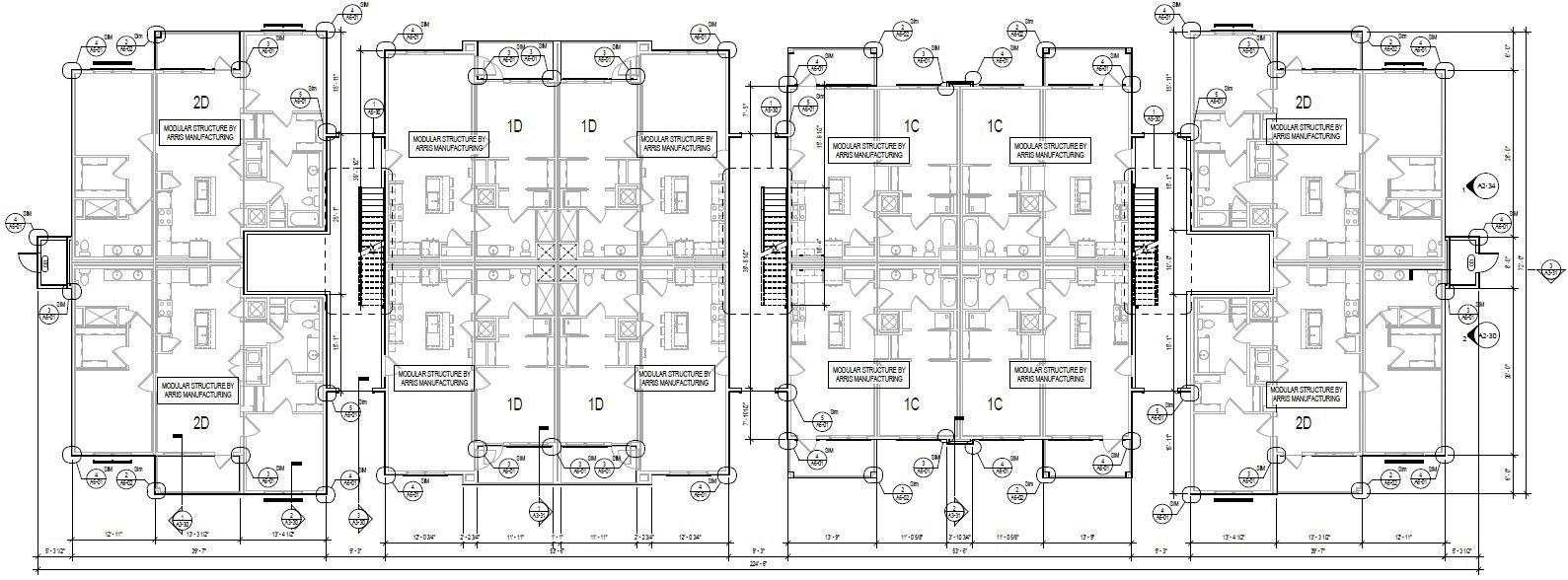
Project Brief
I was part of the design team responsible for the envelope design for exterior finishes, breezeway, stairs, roofing, and utility connections from the outside of the Modular Units to the site utilities. Building 3000 shall be Type V-A construction and Nelson Worldwide, LLC was responsible for the envelope design in coordination with site utilities. The actual area for Building 3000 is 13,354 GSF. Our team was responsible for designing the envelope of these modular unit projects in North Carolina, Florida, and Tennessee.


Drawings Produced While at Nelson Worldwide, LLC.
Contributions with Project Architect, Courtney Morrison

Rendered Elevations Produced While at Nelson Worldwide, LLC
Contributions with Project Architect, Courtney Morrison
Design Process
I helped the architecture project team with the following deliverables:
• Unit plan matrix coordination
• Typical stair details
• Building floor plan and exterior finish materials
• Worked with the Project Architect on accessibility plans and diagrams for path of travel outside of modular units
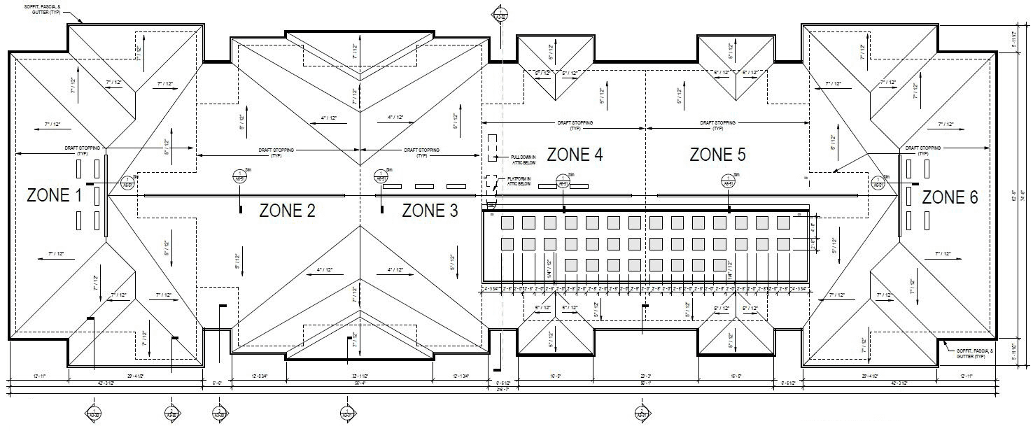
• Assisted the Project Architect on roof vent calculations and access to the condenser bay

Drawings Produced While at Nelson Worldwide, LLC
Contributions with Project Architect, Courtney Morrison
Different Kind of Challenge
Even though this was a modular design, there were still challenges facing accessibility for maintenance, present exterior materials to clients, tight deadlines to coordinate design and structural, mechanical, and plumbing needs.




