Masterplan and Pediatric Challenge
When I worked at CannonDesign, I was proud to be apart of the project team that worked on the renovation and expansion of the Children's Hospital of Wisconsin. This children's hospital houses specialty clinics and surgical services. Creating pediatric environments that balance cutting-edge technology and a non-intimidating space can be a challenge. There were big pieces of machinery and rooms that were uncomfortable for lab work. There were educational spaces that needed strategic design to improve educational spaces that could provide healthy distractions.

Render Produced by CannonDesign, Contributions with Design Studio
Project Goals
This was an Integrated Design Project, meaning that there were many stakeholders. Architects worked with Contractors, Structural/ MEP engineers, Audio/Visual consultants, and technology services collaborating on these projects together. The project will improve the clinical care and experience for all children and families who visit Children's Milwaukee campus. The newly designed and constructed spaces will enhance clinical collaboration and efficiencies through improving the children and family experience and support the use of the most advanced technology available for pediatric care.

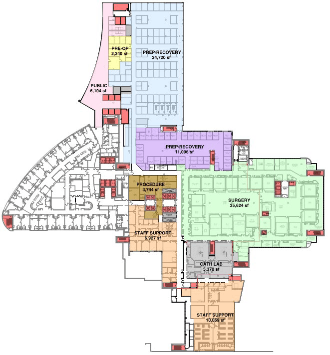
Masterplan Diagram Displaying Various Functions and Navigation,
Drawings Produced by CannonDesign
Process and Collaboration
We had a big architectural team to work on all these phases and spaces for the hospital. I helped with phases from Schematic Design to Design Development and Construction Documents. All these are apart of the design process from defining and ideating to iterations and implementing, and designing prototype spaces for the prep/recovery and surgical spaces. I helped the architecture project team with the following deliverables:
• Phasing exercises to work with clients treating patients and proceeding with construction at the same time
• Drawings including floor plans, sections and elevations in the Surgery and new Ambulatory Building
• Collaborated with Engineers and Equipment team on placement within patient and support rooms

Drawings Produced While at CannonDesign
Outcome
Throughout our collaboration, we designed sophisticated, yet playful and interactive elements throughout clinical spaces to engage children and act as distractions during stressful situations. Clinical workflow was improved by keeping patient vitals and patient check-out occur in the exam room so families make fewer stops. Private waiting spaces and new private PACU rooms were made more comfortable for reuniting with children after a surgical procedure.
NRC Health data from Children's Hospital of Wisconsin showed that the ‘warmth and friendliness of the environment’ has improved from 77.2 percent to 80.4 percent, exceeding the target of 77.5 percent.
Click Here for reference on the results of the project!




